À propos de ce programme
Dans un cadre de vie privilégié, venez découvrir des terrains situés dans un lotissement calme .
- Terrain viabilisé (eau, électricité, tout-à-l’égout)
- À deux pas des commodités, école et commerces
- Quartier résidentiel, cadre verdoyant et ensoleillé
- Libre constructeur – votre projet, votre style
Les informations sur les risques auxquels ce bien est exposé sont disponibles sur le site Géorisques
- Réf. 34148210
- Réf. 9184
LA SOURCE DU MIDI
GABIAN
- Disponibilité 01/01/1970
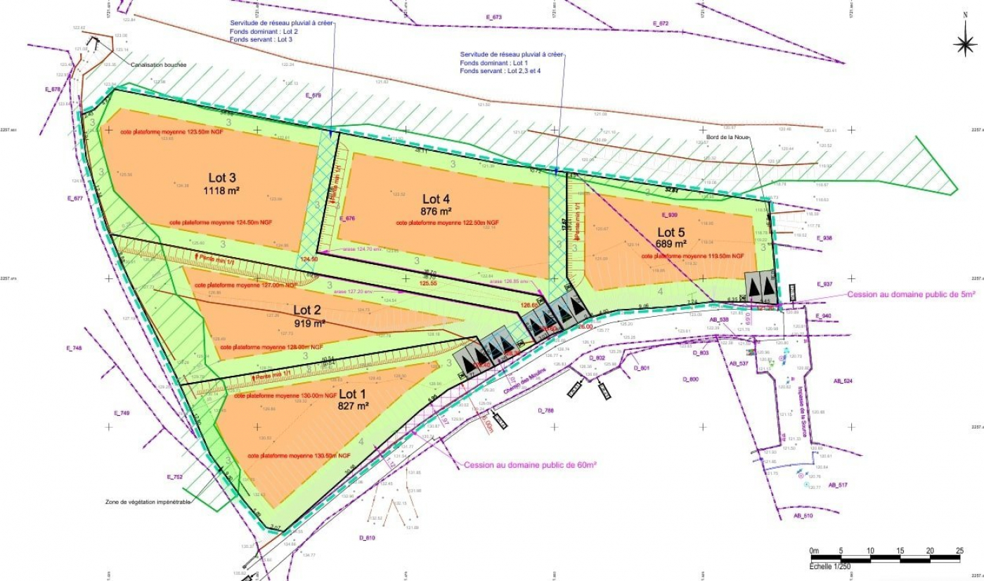
Détail des lots disponibles
| Type de programme neuf | Nombre de chambres | Surface | Surface terrain | Prix |
|---|---|---|---|---|
| Local bureau | 0 chambres | 0.00 m2 | 689.00 m2 | 107 000 € * |
| Local bureau | 0 chambres | 0.00 m2 | 827.00 m2 | 122 500 € * |
| Local bureau | 0 chambres | 0.00 m2 | 919.00 m2 | 139 000 € * |
| Local bureau | 0 chambres | 0.00 m2 | 876.00 m2 | 143 500 € * |
| Local bureau | 0 chambres | 0.00 m2 | 1118.00 m2 | 163 500 € * |
À proximité de ce bien ...
Cochez les points qui vous intéressent pour les voir apparaître sur la carte !
Contactez votre agence de proximité
ou
Envoyer
cette annonce à un ami
cette annonce à un ami
Votre E-mail a bien été envoyé.
Une erreur s’est produite lors de l’envoi de votre e-mail.
Veuillez réessayer à nouveau
Veuillez réessayer à nouveau










